Skip To Content

11725 Wentwood Vale

San Antonio, TX 78245
  • $278,950
  • STATUS: Price Change
  • ON SITE: 39 Days
  • MLS #: 1912550
Price Reduced
UPDATED: 62 min ago
$278,950
  • 3
    BEDS
  • 0.11
    ACRES
  • 2
    BATHS
  • 1
    1/2 BATHS
  • 1,470
    SQFT
  • $190
    $/SQFT
Neighborhood:
Type:
Single-Family Home
Built:
2025
County:
Area:

School Information

Elementary School:
Middle School:
High School:
School District:

Description

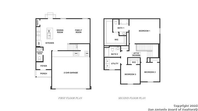
Welcome to The Davis, a two-story home located at Laurel Vistas in San Antonio, TX. This floor plan offers 2 classic exteriors and 2-car garage. Inside this 3 bedroom, 2.5 bathroom home, you'll find 1489 square feet of living space. The entry opens to a gourmet kitchen before flowing into the dining and family room with an open floorplan concept. The kitchen includes quartz counter tops, quality cabinetry, stainless steel appliances, large breakfast island, and pantry. Head up the stairs to find the main bedroom suite, all secondary bedrooms, the laundry room, and a full bath. The Davis layout is perfect if you love entertaining downstairs and relaxing upstairs. The private main bedroom features an attractive ensuite with quality cabinetry. A spacious tiled walk-in shower and large walk-in closet provide all the space and convenience you need. Additional features of The Davis floor plan include sheet vinyl flooring in entry, living room, and all wet areas, quartz counter tops in all bathrooms and HOME IS CONNECTED base package. Using one central hub that talks to all the devices in your home, you can control the lights, thermostat and locks, all from your cellular device.

Monthly Payment Calculator



© 2025 San Antonio Board of REALTORS® All rights reserved. IDX information is provided exclusively for consumers' personal, non-commercial use and may not be used for any purpose other than to identify prospective properties consumers may be interested in purchasing. Information is deemed reliable but is not guaranteed accurate by the MLS or Pompa Realty Group | Keller Williams. Last updated 2025-11-12T11:33:08.743.
www.pomparealtygroupsa.com/homes/168512313
Print Image

11725 Wentwood Vale San Antonio, TX 78245

  • Price: $278,950
  • Status: Price Change
  • On Site: 39 Days
  • Updated: 62 min ago
  • MLS #: 1912550
3
Beds
2
Baths
1
½ Baths
0.11
Acres
1,470
SQFT
$190
$/SQFT
2025
Built
Neighborhood:
Laurel Vista
County:
Bexar
Area:
San Antonio
Elementary School:
Ladera
Middle School:
Loma Alta
High School:
Medina Valley
School District:
Medina Valley I.S.D.
Property Description
Welcome to The Davis, a two-story home located at Laurel Vistas in San Antonio, TX. This floor plan offers 2 classic exteriors and 2-car garage. Inside this 3 bedroom, 2.5 bathroom home, you'll find 1489 square feet of living space. The entry opens to a gourmet kitchen before flowing into the dining and family room with an open floorplan concept. The kitchen includes quartz counter tops, quality cabinetry, stainless steel appliances, large breakfast island, and pantry. Head up the stairs to find the main bedroom suite, all secondary bedrooms, the laundry room, and a full bath. The Davis layout is perfect if you love entertaining downstairs and relaxing upstairs. The private main bedroom features an attractive ensuite with quality cabinetry. A spacious tiled walk-in shower and large walk-in closet provide all the space and convenience you need. Additional features of The Davis floor plan include sheet vinyl flooring in entry, living room, and all wet areas, quartz counter tops in all bathrooms and HOME IS CONNECTED base package. Using one central hub that talks to all the devices in your home, you can control the lights, thermostat and locks, all from your cellular device.
Exterior Features

Exterior BrickCement Fiber Exterior Features Covered PatioPrivacy FenceSprinkler SystemDouble Pane Windows Lot Improvements Street PavedCurbs Parking Two Car Garage Pool Spa None Pool YN No Roof Composition Stories 2 Style Two Story

Interior Features

Air Conditioning One CentralHeat Pump Bedroom2 Length 10 Bedroom2 Width 10 Bedroom3 Length 11 Bedroom3 Width 10 Dining Room Length 14 Dining Room Width 8 Energy Efficiency 13-15 SEER AXProgrammable ThermostatDouble Pane WindowsRadiant BarrierLow E Windows Entry Room Length 11 Entry Room Width 5 Family Room Length 14 Family Room Width 12 Fireplace Not Applicable Fireplaces 0 Floor CarpetingVinyl Foundation Slab Heating CentralHeat Pump Heating Fuel Electric Inclusions Washer ConnectionDryer ConnectionMicrowave OvenStove/RangeDisposalDishwasherIce Maker ConnectionSmoke AlarmElectric Water HeaterSolid Counter Tops Interior One Living AreaLiv/Din ComboEat-In KitchenIsland KitchenBreakfast BarUtility Room InsideOpen Floor PlanCable TV AvailableLaundry Room Kitchen Length 14 Kitchen Width 13 Master Bath Shower OnlySingle Vanity Master Bath Length 8 Master Bath Width 8 Master Bedroom Walk-In ClosetFull Bath Master Bedroom Length 16 Master Bedroom Width 14 Utility Room Length 8 Utility Room Width 6 Window Coverings All Remain

Property Features

Approx Age 0 Builder Name D.R. Horton Certified Tax Year 2024 Construction New Currently Being Leased No Hoa Fee1 400 Hoa Frequency Annually Hoa Mandatory Mandatory Hoa Name1 DIAMOND ASSOC. MANAGEMENT Miscellaneous Builder 10-Year WarrantyNo City Tax Multiple Hoa No Neighborhood Amenities Pool Possession Closing/Funding Proposed Terms ConventionalFHAVATX VetCash Source Sq Ft Bldr Plans Subdivision Legal Name LAUREL VISTA Taxed By Multiple Counties No Total Tax 1.99 Utility Supplier Electric CPS Utility Supplier Water SAWS Water Sewer Water SystemSewer System

Listing information © Copyright 2025 San Antonio Board of REALTORS®, All Rights Reserved.
Listing provided courtesy of R.J. Reyes of Keller Williams Heritage: rj@kwthesignaturegroup.com, (210) 842-5458.


© 2025 San Antonio Board of REALTORS® All rights reserved. IDX information is provided exclusively for consumers' personal, non-commercial use and may not be used for any purpose other than to identify prospective properties consumers may be interested in purchasing. Information is deemed reliable but is not guaranteed accurate by the MLS or Pompa Realty Group | Keller Williams. Last updated 2025-11-12T11:33:08.743.
 
https://bt-photos.global.ssl.fastly.net/sabor/orig_boomver_1_1912550-2.jpg https://bt-photos.global.ssl.fastly.net/sabor/orig_boomver_1_1912550-2.jpg https://bt-photos.global.ssl.fastly.net/sabor/orig_boomver_1_1912550-2.jpg
Logo
Pompa Realty Group | Keller Williams
15510 Vance Jackson Rd Unit 1
San Antonio TX, 78249